Občina Postojna uspešna na državnem razpisu: skoraj 652.000 evrov za prizidek Osnovne šole Prestranek
Ministrstvo za vzgojo in izobraževanje je objavilo rezultate razpisa za sofinanciranje investicij v vrtcih in osnovnih šolah za obdobje 2026–2029. Med uspešnimi občinami je tudi Občina Postojna, ki bo za projekt prizidka Osnovne šole Prestranek prejela 651.835 evrov nepovratnih sredstev. Skupna vrednost investicije z DDV znaša 1.710.100 evrov, od tega bo 1.058.264 evrov zagotovila Občina Postojna iz proračuna, 651.835 evrov pa bo sofinanciranih s strani Ministrstva za vzgojo in izobraževanje.
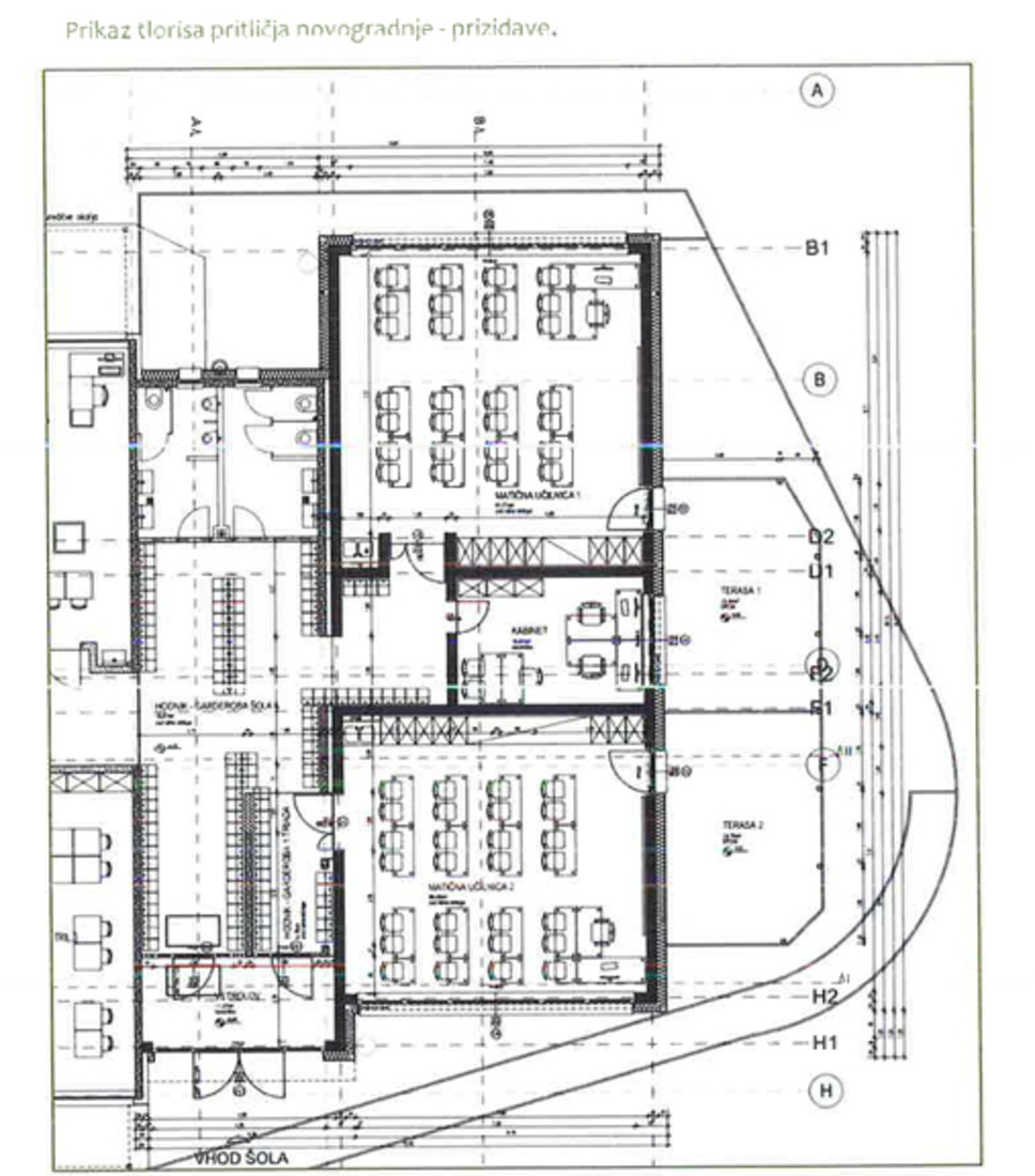
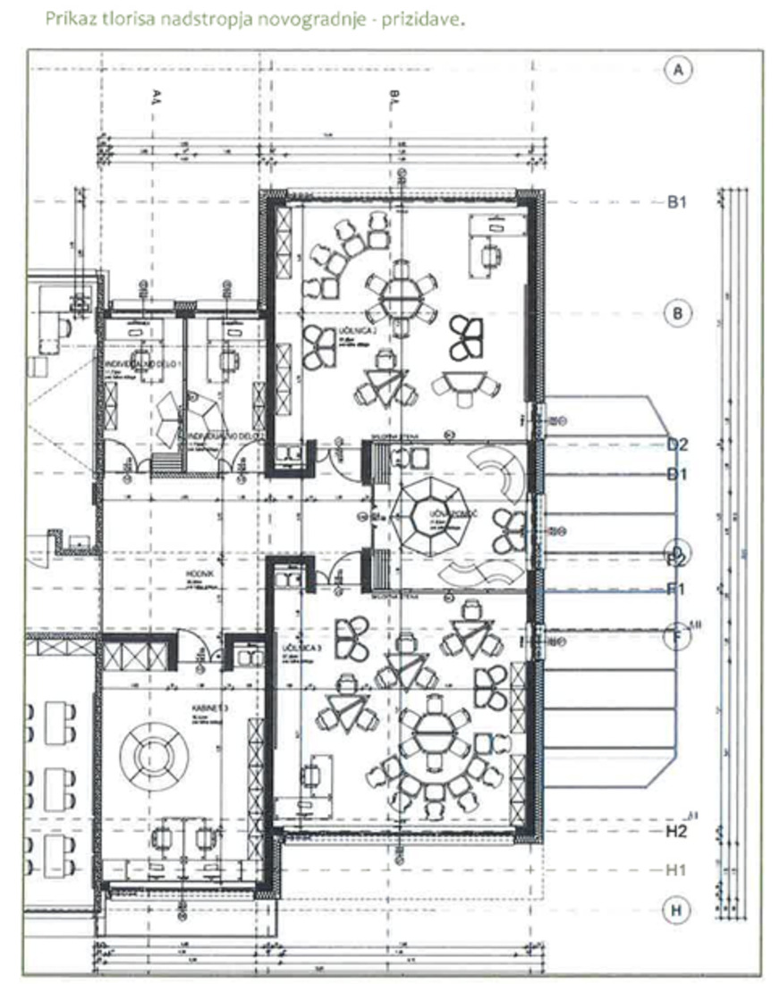
Izvedba projekta je načrtovana v letih 2026 in 2027. Projekt predvideva izgradnjo sodobnega prizidka k Osnovni šoli Prestranek, s katerim bo šola pridobila 372,2 m² novih neto notranjih površin in 47,3 m² novih zunanjih površin (urejene terase). Prizidek bo vseboval nove učilnice in spremljajoče pedagoške prostore, večnamenske prostore za individualno in skupinsko delo, prostore za strokovne delavce, sanitarije in komunikacijske površine, zunanjo učno površino – teraso, namenjeno izvedbi pouka in dejavnosti na prostem.
Namen investicije je razbremenitev obstoječih prostorov, izboljšanje kakovosti pouka ter zagotovitev ustreznih prostorskih pogojev za izvajanje sodobnih učnih metod in vključujočega izobraževanja.
Z uspehom na razpisu Občina Postojna potrjuje svojo usmerjenost v kakovostno javno infrastrukturo in ustvarjanje okolja, ki podpira razvoj otrok, družin in celotne skupnosti.
Na razpisu je ministrstvo sicer skupno namenilo 160 milijonov evrov, strokovna komisija pa je odobrila 28 projektov v vrtcih v skupni vrednosti 44,6 milijona evrov, 12 projektov v osnovnih šolah s prilagojenim programom v vrednosti 21,1 milijona evrov, 63 projektov v osnovnih šolah v vrednosti 93,57 milijona evrov.